田舎暮らし 千葉 南房総市
海近く!敷地内には古民家付き!店舗付きで事業も可能!
新着 おすすめ
物件概要
| 物件番号 | T0104 |
|---|---|
| 所在地 | 南房総市白浜町根本 |
| 最寄り駅・交通 | JR内房線 館山駅 14Km |
| 価格 | 698万円 商談中 成約済 |
| 土地面積 | 763.63㎡( 231.00坪 ) |
| 建物面積 | 89.17㎡( 26.97坪 ) |
| 構造・規模 | 木造2階建 |
| 築年月 | 昭和60年月日不詳 |
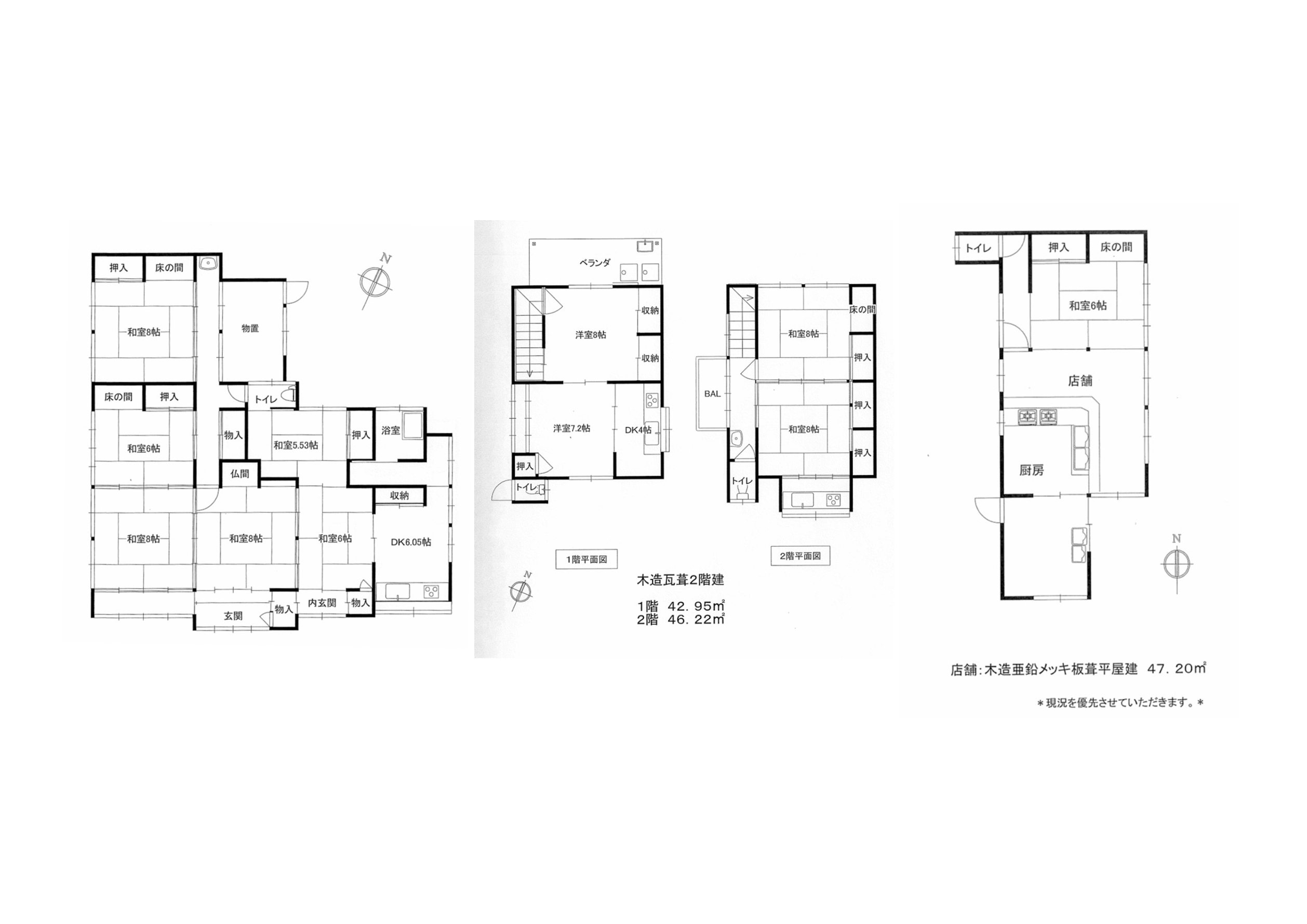
| 間取り | 4K |
| 設備 | 東京電力・プロパン・公営水道・浄化槽 |
| 接道状況 | 西側 舗装公道 幅員約3.3m |
| 土地権利 | 所有権 |
|---|---|
| 地目 | 宅地 |
| 都市計画 | 区域外 |
| 用途地域 | 無指定 |
| 他の制限 | |
| 建ぺい率 | |
| 容積率(%) | |
| 駐車場 | 有(敷地内複数台可) |
| 現況 | 空家 |
| 引渡し日 | 相談 |
| 取引形態 | 売主 |
| 備考 | ※床など修復工事必須箇所あり。 ※現況引き渡し ※境界非明示 |
|---|

おすすめポイント
- 海まで徒歩15分!
- 敷地内には人気の平家建の古民家付き!
- 店舗が隣接していますので商売も可能!
物件詳細
間取り図 

概略図 

地図





